県営住宅
中居 1975-C <4階建>
物件概要
-
建物種別県営住宅
-
所在地高崎市中居町二丁目20番地1
-
家 賃¥23,300~¥45,900
-
最寄駅JR倉賀野駅から2,650m
-
駐車場空き有り ¥2,200~¥3,300
-
築年数1975年
-
構造・建階中層耐火 地上4階
-
総戸数24
-
空室
各種諸情報
エレベーター、都市ガス、鉄筋コンクリート
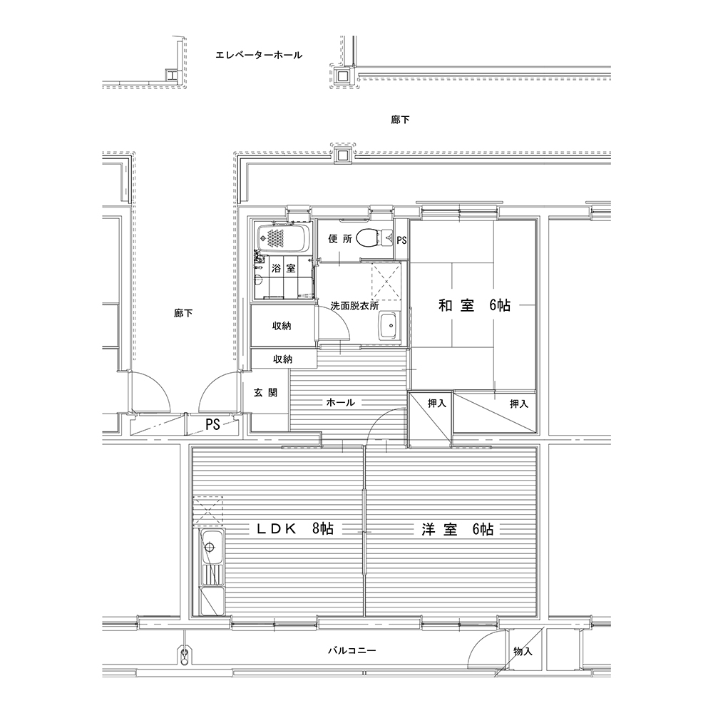
間取り詳細情報
-
2LDK
- 専用面積57.56m²
- 詳細●6/洋6/LDK、水洗トイレ、浴槽釜設置 ※2人以上
駐車場情報
- 空き状況空き有り
- 駐車料金月額:¥2,200~¥3,300
周辺環境
- 120m群馬銀行中居支店
- 380m矢中保育園
- 500m高崎市立矢中小学校
- 500m黒沢病院
- 800mフジマート中居店
- 1,030mアピタ高崎店
- 1,380m高崎市立矢中中学校
- 4,200m高崎市役所
本物件の空室状況のご確認とお申込みについて
まずはご入居のご相談を下記のいずれかでお願いいたします。
詳しいご案内をいたしますので、まずは公社管理部管理課までご連絡ください。
お申込みには入居資格を満たす必要があります。詳しくは「入居資格について」ページをご覧ください。
また、ご入居できるかを確認できる「かんたんシミュレーション」もご活用ください。
-
<お電話にてご相談の場合>
-
<メールにてお問い合わせの場合>


