県営住宅
下磯部 2002-C <4階建>
物件概要
-
建物種別県営住宅
-
所在地安中市下磯部370-50
-
家 賃¥18,700~¥44,700
-
最寄駅JR磯部駅から2,990m
-
駐車場空き有り ¥3,300
-
築年数2003年
-
構造・建階中層耐火 地上4階
-
総戸数20
-
空室4F
各種諸情報
浴室風呂釜(壁掛け式)、緊急通報装置(配管のみ)、給湯設備、エレベーター、集中プロパン
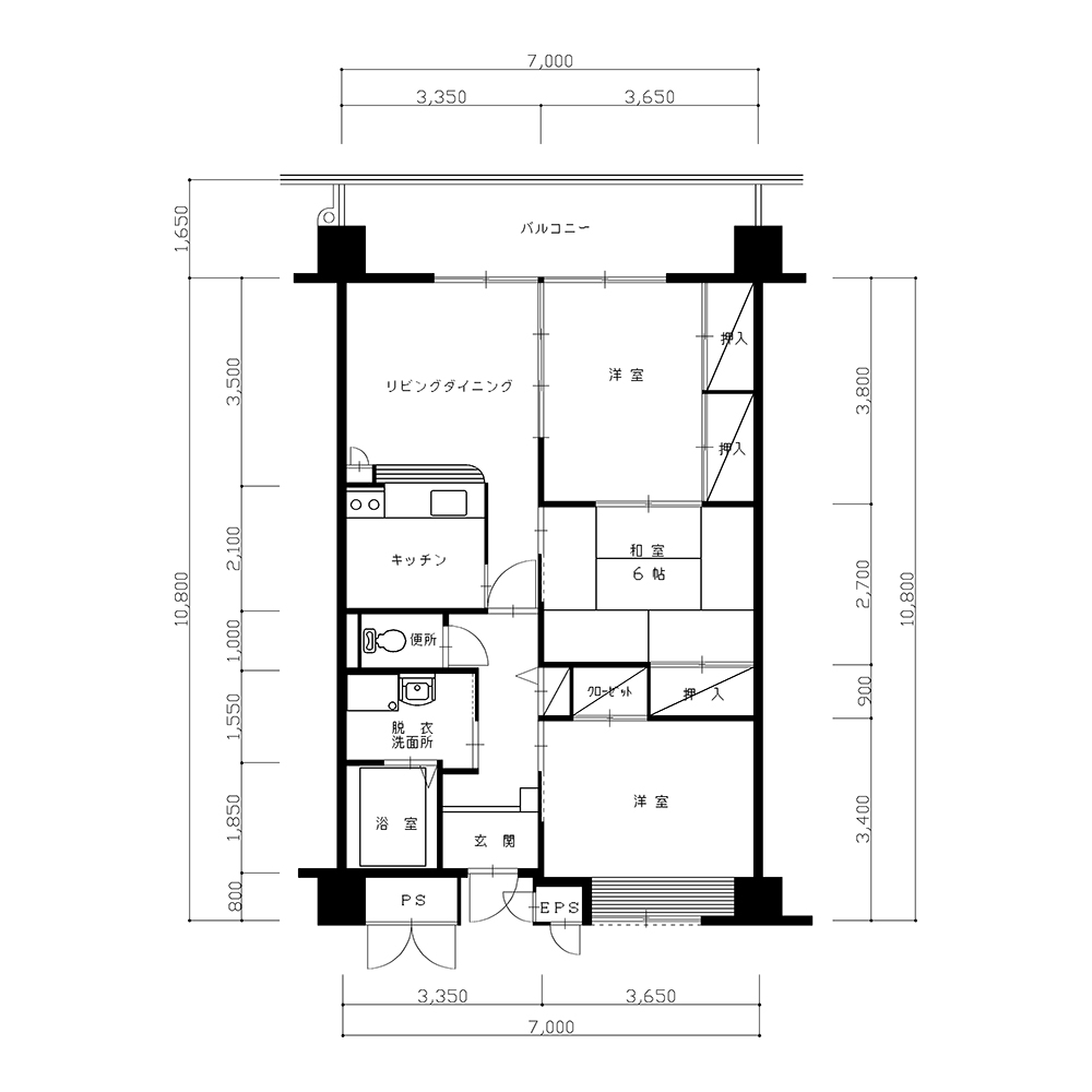
間取り詳細情報
-
3LDK
- 専用面積70.74m²
- 詳細6/洋6/洋6/LDK、水洗トイレ、浴槽釜設置
-
3LDK
- 専用面積70.74m²
- 詳細●(子育)6/洋6/洋6/LDK、水洗トイレ、浴槽釜設置
-
2LDK
- 専用面積58.26m²
- 詳細6/洋5.3/LDK、水洗トイレ、浴槽釜設置
駐車場情報
- 空き状況空き有り
- 駐車料金月額:¥3,300
周辺環境
- 440mせんだん幼稚園
- 680m安中警察署
- 1,340m安中市立磯部小学校
- 1,980m安中市立第二中学校
- 2,040m碓氷病院
- 2,460m安中市役所
本物件の空室状況のご確認とお申込みについて
まずはご入居のご相談を下記のいずれかでお願いいたします。
詳しいご案内をいたしますので、まずは公社管理部管理課までご連絡ください。
お申込みには入居資格を満たす必要があります。詳しくは「入居資格について」ページをご覧ください。
また、ご入居できるかを確認できる「かんたんシミュレーション」もご活用ください。
-
<お電話にてご相談の場合>
-
<メールにてお問い合わせの場合>



