県営住宅
北久保 1977-A <10階建>
物件概要
-
建物種別県営住宅
-
所在地高崎市北久保町1
-
家 賃¥18,900~¥37,200
-
最寄駅JR北高崎駅から2,520m
-
駐車場空き有り ¥3,300
-
築年数1978年
-
構造・建階高層耐火 地上10階
-
総戸数80
-
空室7F、8F、10F
各種諸情報
浴室風呂釜(バランス式・計画取替(全戸))、給湯設備、エレベーター、集中プロパン
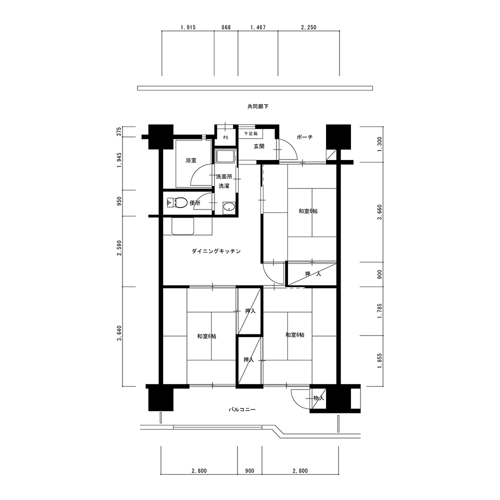
間取り詳細情報
-
3DK
- 専用面積58.11m²
- 詳細6/6/6/DK、水洗トイレ、浴槽釜設置
-
2LDK
- 専用面積58.35m²
- 詳細6/6/LDK、水洗トイレ、浴槽釜設置
駐車場情報
- 空き状況空き有り
- 駐車料金月額:¥3,300
周辺環境
- 600mこだま幼稚園
- 860m豊岡郵便局
- 890m高崎市立豊岡小学校
- 1,580m高崎市立豊岡中学校
- 1,920mカインズホーム高崎豊岡店
- 2,000mとりせん豊岡店
- 3,500m高崎市役所
本物件の空室状況のご確認とお申込みについて
まずはご入居のご相談を下記のいずれかでお願いいたします。
詳しいご案内をいたしますので、まずは公社管理部管理課までご連絡ください。
お申込みには入居資格を満たす必要があります。詳しくは「入居資格について」ページをご覧ください。
また、ご入居できるかを確認できる「かんたんシミュレーション」もご活用ください。
-
<お電話にてご相談の場合>
-
<メールにてお問い合わせの場合>



